作者mike060606 (大麥克)
標題Re: [請益] 整層出租 or 隔套出租
時間2024-09-06 00:45:00
※ 引述《mike060606》之銘言
: 最近從長輩手中接手一間房子,分析一下優缺點。
: 優點:
: 1. 室內有32坪,空間還算不錯。
: 2. 距離捷運站很近,離西門捷運站出口100公尺左右。
: 3. 電梯大樓,24小時管理員,可代收包裹。
: 4. 大樓公共空間有交誼廳、閱讀室、健身房、卡拉ok,24小時開放,預約就能使用。
: 缺點:
: 1. 位於3樓。
: 2. 格局不好。(所以打算重新裝潢)
: 目前有兩個想法,一個是圖B整層出租(3房一廳2衛),一個是圖A隔成套房(2套房+2雅?
?
: 。想請教大家的意見。
: https://i.imgur.com/mwBs0tV.jpeg
: 房間1要多做一間廁所
: 房間4我想加大空間(把客廳縮小)
: https://i.imgur.com/18hrpVS.jpeg
: ----
: Sent from BePTT
如果回覆自己有違反版規再提醒我 我會自己刪除
昨天得到版友非常好的意見 我立馬請設計師規劃
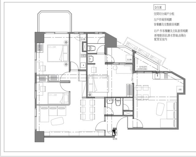
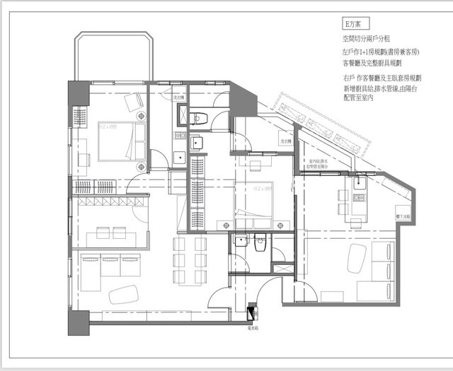
https://i.imgur.com/NTeHZJA.jpeg
https://i.imgur.com/eRFv2Tf.jpeg
差異在左邊那間 一個房間or 兩間房間
大家會比較建議哪一個 我自己喜歡D設計
----
Sent from
BePTT
--
※ 發信站: 批踢踢實業坊(pttsite.org.tw), 來自: 36.229.91.90 (臺灣)
※ 文章網址: https://pttsite.org.tw/home-sale/M.1725554702.A.EA6
推 shuichia: 兩房的租金跟客層絕對比一房高,既然要花錢裝潢投資當然09/06 00:56
→ shuichia: 是兩房好09/06 00:56
→ Keade0325: 2房09/06 03:30
→ bigyin: 大樓動廁所,穩死09/06 07:17
→ GiantChicken: 很好奇你新廁所要怎弄 要弄要連旁邊廁所一起吧09/06 09:39
推 cir72: 學生妹被包養多嗎09/06 09:39 → superstars: 很好奇樓上兩樓的閱讀能力,他根本沒有要動廁所啊09/06 14:13
→ kevinhaha: D~ 進可攻退可守09/06 15:09
→ kevinhaha: 不過目前這樣裝潢真的能回收XD?09/06 15:10