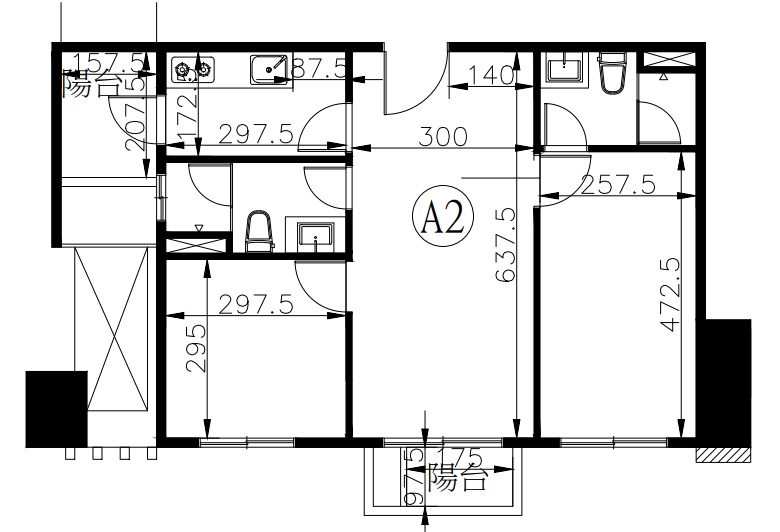
借串問,同樣是兩房兩衛,室內約18坪(不含陽台),這案子可以客變,不知道板上大大會如何調整格局呢? https://i.imgur.com/tUuC4UY.jpeg
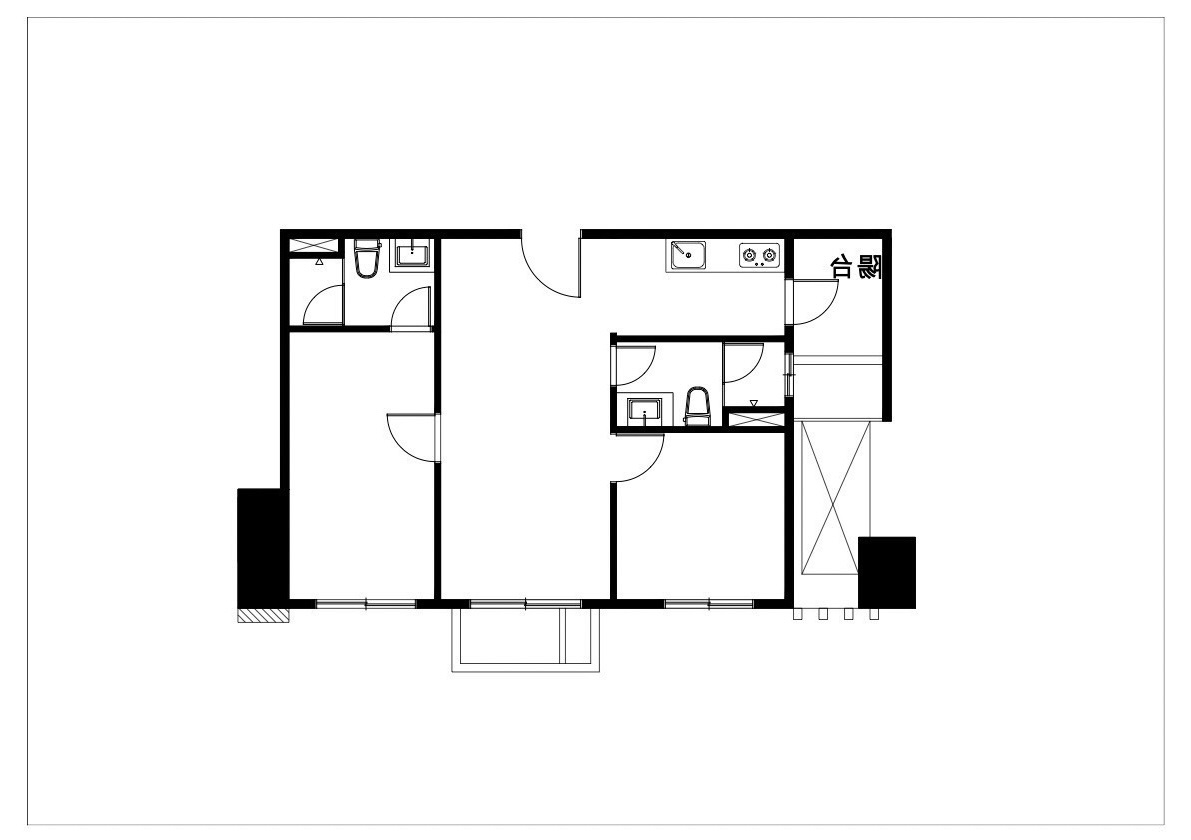
自己想客變後如圖,可以省下走道虛坪 https://i.imgur.com/9fXbrq5.jpeg
----- Sent from JPTT on my iPhone -- ※ 發信站: 批踢踢實業坊(pttsite.org.tw), 來自: 223.136.134.245 (臺灣) ※ 文章網址: https://pttsite.org.tw/home-sale/M.1725493086.A.F60
A80211ab: 你客變到陽台換位置 廁所管路也全換 09/05 07:57
A80211ab: 抱歉看錯 原來是圖左右相反 09/05 07:58
l98: 房間門開中間,你電視要放哪裡? 他們開旁邊就是要給你完整長 09/05 08:02
l98: 一點的電視牆 09/05 08:02
l98: 川字格局其實沒太多好變更的 09/05 08:02
Asterix: 亞洲最大包養平台上線了 09/05 08:02
TaiGG: 抱歉我家配圖,建商只給我一邊,兩張圖是對稱的 09/05 08:03
l98: 你最好要拿到尺寸圖 不然電視+沙發位置會很小 09/05 08:04
zengtoro: 好奇這種天井是廚房陽台的設計不會一家烤肉萬家香嗎 09/05 08:11
icexice: 原本的空間感好太多了,改完變侷促 09/05 08:36
momomom: 這案件在台北嗎? 09/05 08:44
AdamShi: 這個包養網正妹好多 是真的嗎 09/05 08:44
yamamoto1128: 建議別動了 09/05 08:47
dracula83183: https://i.imgur.com/nPwWYEm.jpeg 09/05 09:18
dracula83183: 幫你鏡像一下 09/05 09:18
assunny1012: 改主臥的門就好 這樣可以放L沙發 09/05 09:22
aa652765: 喜歡原始平面格局進房動線都有陽光與河景。你門往上的 09/05 09:47
lezabo: 真的有這麼多人在找包養 09/05 09:47
aa652765: 話,沙發跟床會有壓樑的問題不建議更動,只建議你可以利 09/05 09:47
aa652765: 用3米6的屋高弄一些垂直收納。 09/05 09:47
TaiGG: 如果改成這樣是否會比較好呢? 09/05 09:57
TaiGG: https://i.imgur.com/92D7rMO.jpeg 09/05 09:57
wseedw: 門不要開在中間 09/05 10:04
silberger: 有人可以分析一下包養平台的差異嗎 09/05 10:04
WenliYang: 別瞎搞.... 09/05 10:08
YCTING: 新手亂改的標準案例 09/05 10:16
LeonKuo: 建商會弄就是最多人接受 最好賣的格局 問眾人意見 只要 09/05 10:23
LeonKuo: 採樣人數夠多 一定是原本格局票數會最高吧 09/05 10:23
l98: 二次改的圖,主臥開門進去時要注意主臥衛浴有沒有人要出來 09/05 10:29
xayile: 那個包養網人最多XD 09/05 10:29
l98: 房間門大概是90寬,你次臥那面牆大概只剩200的長度可以放 09/05 10:30
l98: 電視櫃 OR 沙發 09/05 10:31
l98: 如果有想要擺餐桌或是電腦桌的話要想一下要擺哪裡 09/05 10:34
l98: 等於你次衛浴+廚房出來那塊是不能擺東西的,會卡動線 09/05 10:39
cazo: 我妹上包養網被我發現= = 09/05 10:39
l98: 比較合理的 09/05 10:43
momomom: 原本格局明明就很好 也沒有走廊 到底在堅持啥XD 09/05 10:53
l98: 他可能覺得那塊空間空起來浪費吧~~~但川字就這樣呀 09/05 10:55
aeonian: 客邊後 覺得沒那麼糟 只是電視牆短了點看可不可以接受 09/05 11:09
izilo: 隔壁桌的人竟然在討論包養... 09/05 11:09
aeonian: 還有沙發 只剩兩米初 可以接受就變吧 09/05 11:09
idmaker: 有差嗎 本來川字就沒走道了啊 09/05 11:59
xyz30800: 原本比較好 09/05 12:00
bbbing: 圖片放反,我覺得改法還好,但請先算好電視沙發要的寬度 09/05 12:25
bbbing: 原本的格局冰箱太遙遠,客房離廁所也很遠,這不太舒服 09/05 12:25
SEDAP: 樓上是不是被包養 09/05 12:25
TaiGG: 會想這樣改的理由是想讓電視牆放短編,長邊可以放一個L型沙 09/05 13:54
TaiGG: 發,要去主臥衛浴也不用繞道一大圈,不是堅持一定要門開中 09/05 13:54
TaiGG: 間,是想集思廣益 09/05 13:54
l98: 65 -> 長 143.9 , 55 -> 長 121.76 09/05 14:02
TUZom: 未看先猜這包養 09/05 14:02
l98: 目前常見主流電視尺寸,你要更大要自己找資料 09/05 14:03
l98: 電視寬度不足,就大概只做個電視櫃這樣,左右兩邊無法做櫃體 09/05 14:03
l98: 原本冰箱就是放廚房呀 09/05 14:04
l98: 是少了電器櫃 09/05 14:05
l98: 廠商給你的原始格局是給你整面牆的空間可以利用 09/05 14:05
Jiulon: 一定又是這包養 09/05 14:05
l98: 更正,是連續一整面牆 09/05 14:05
l98: 你門開中間的話,那就會有斷面,物品沒辦法靠一邊擺放 09/05 14:06
l98: 交錯放就會造成動線不佳 09/05 14:07
l98: https://i.imgur.com/DQpA0hS.png 09/05 14:15
l98: L 型沙發隨便抓得資烙,三人轉角長就要 284 CM 09/05 14:16
laetuon: 包養平台不意外 09/05 14:16
l98: 你要看一下你沙發中心點和電視中心點有沒有辦法對齊 09/05 14:16
l98: 因為你現在也沒有提出你客廳要怎麼規劃,像二次更改那張 09/05 14:18
l98: 我前面就問你,餐桌或電腦工作桌你要怎麼擺? 目前看起來 09/05 14:19
l98: 只能擺沙發右邊和主臥門中間那塊 09/05 14:19
slot365: 覺得包養網EY嗎 09/05 14:25
l98: 再來我們做簡單的數學計算,客廳深 300 (還要扣隔間牆厚度) 09/05 14:37
l98: L 型沙發,貴妃椅部分大概要 185 電視櫃算60深, 300-185-60= 09/05 14:39
l98: 55 ,這還要扣掉牆心,那依我上面那張示意圖,你剩多少距離可 09/05 14:40
l98: 以當走道走去陽台? 09/05 14:40
l98: 如果L 放另外一側,那你動線就要繞 09/05 14:41
colortea: 包養網站葉配啦 09/05 14:41
etfive217: 主臥門改主臥廁所旁邊比較好,不然上主臥廁所你要先走 09/05 14:48
etfive217: 到客廳深處,然後再繞回去主浴位置,整體動線會拉很長 09/05 14:48
l98: 除非兩人搶廁所,不然一般也不會特別去主臥廁所上吧 09/05 14:50
l98: 還是 WIFI 比較強? 09/05 14:50
glenber: 記者收了包養網多少啦 09/05 14:50
etfive217: 就動線拉很長,我自己是比較懶啦 09/05 14:55
l98: 我是覺得客臥要去廁所要繞客廳比較阿雜,不過板上很多兩房u一 09/05 14:56
l98: 衛派的,不覺得有什麼不便 09/05 14:56
l98: 小宅只能取捨,看他自己要什麼做選擇 09/05 14:57
l98: 不然 L 型沙發他要買小的..那深度大概可以減少 20 09/05 14:58
Kimbel: 包養真亂 09/05 14:58
l98: 但缺點大概是深度不足,要躺著睡可能要彎曲身體 09/05 14:59
l98: 坐著還行 09/05 14:59
TaiGG: 尺寸方面已經扣除牆厚度了 09/05 15:13
TaiGG: 確實大致配法如上圖,但我會把L放在陽台那側 09/05 15:14