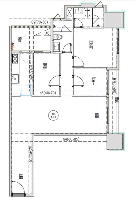
想問長輩最近買這個格局要自住 想要改成兩個大一點的房間,客廳不用太大 說不用客衛,想改成兩間套房 最近要去做客變,還可以要求多做插座 想問這種格局大家的意見怎麼做比較好呢 https://i.imgur.com/X1mwcEj.jpeg
-- ※ 發信站: 批踢踢實業坊(pttsite.org.tw), 來自: 218.172.137.206 (臺灣) ※ 文章網址: https://pttsite.org.tw/home-sale/M.1724397696.A.D10
u93302: 臥室一併主臥就好啦08/23 15:24
l98: 客衛浴在那邊,我看只能主臥和臥室一合併08/23 15:25
akita690: 臥室1的門不開,把主臥的隔間取消合併兩間臥室,床可以08/23 15:27
akita690: 避開大梁放原來的臥室1,可以用更衣室隔開浴室大門,其08/23 15:27
akita690: 他看個人喜好囉08/23 15:27
fuoya: 有沒有富二代要包養08/23 15:27
backpacker18: 阿不就兩間臥室合併08/23 15:37
backpacker18: 不然還能怎麼改XD08/23 15:37
luvdirk: 長輩說要改成兩間套房08/23 15:37
A80211ab: 很簡單 臥一拆掉 主臥門移到臥一 客衛給臥二 08/23 15:39
dammbob: 要兩套房很容易,改門位置就好,房內空間也可以用到滿 08/23 15:43
Apasiri: 身邊有朋友被包養 08/23 15:43
backpacker18: 兩套走廊空間會被犧牲掉 08/23 15:44
l98: 自住改成兩個套房...一間要給外籍看護嗎? 還是打算分房睡? 08/23 15:47
luvdirk: 長輩自己住一間,一間給小孩回來住 08/23 15:47
l98: 改成套房很簡單,你兩間套房大小要一樣? 08/23 15:47
l98: 原本的走道空間犧牲掉就好,然後改原臥室 一和二的門都往下移 08/23 15:49
litidi: 亞洲最大包養平台上線了 08/23 15:49
l98: 臥室一和主臥合併 08/23 15:49
livability: 長輩住,建議以無障礙空間去設計 08/23 15:50
livability: 包括門要輪椅能進出,浴室的無障礙設施 08/23 15:51
wseedw: 臥室一併主臥,臥室二併走道 08/23 17:28
goodboy98: 又是保齡球? 08/23 18:09
Merzario: 這個包養網正妹好多 是真的嗎 08/23 18:09
minju0612: 這玄關長度看了好燥XD 08/23 18:10
momomom: 臥室1+主臥合併 門開在靠雨遮 臥室2拉寬到走廊 門開在靠 08/23 18:17
momomom: 廚房 兩扇門中間放電視 不就好了? 08/23 18:17
a11211120: 真的要買這種房型嗎? 銷售時第一個優點我猜會寫 豪宅 08/23 18:55
a11211120: 落塵區 08/23 18:55
Muzaffer: 真的有這麼多人在找包養 08/23 18:55
inconspicous: 臥室1直接當衣帽間就好 08/23 19:11
inconspicous: 不用打掉吧,以後要賣時可以寫三房 08/23 19:12
inconspicous: 廁所也是兩個剛好 08/23 19:12
foxher: 臥室中間走道拿掉,主臥併臥一直接就是兩套房 08/23 19:16
waloloo: 長玄關住民宿住過,結果床和沙發區房型還是小的,收中房 08/23 23:01
MIJice: 有人可以分析一下包養平台的差異嗎 08/23 23:01
waloloo: 費用 08/23 23:01