原本考慮購買兩房格局,但是看了三房之後覺得尚可負擔,因此今日先下訂三房,五天內 還可以更改。 https://i.imgur.com/EGOjILb.jpg
權狀31,公設比32.1% https://i.imgur.com/GWrrdhu.jpg
權狀23.66,公設比一樣32.1% https://i.imgur.com/7HM41px.jpg
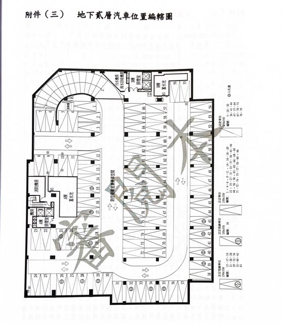
另外想請問車位要選擇哪個較好,圖上有畫閃電的 已架設好充電樁,要多15萬元,因為目前不是電動 車,但是未來一定會換電車,代銷建議選有電纜線 經過的車位以後才能順利安裝充電設備,請問真的 是如此嗎? 目前是先選擇38號,但是回家後發現如果37號車子如果停太出來,會造成出入的不方便。 想問大家有建議的車位嗎?謝謝。 -- ※ 發信站: 批踢踢實業坊(pttsite.org.tw), 來自: 61.61.181.34 (臺灣) ※ 文章網址: https://pttsite.org.tw/home-sale/M.1698515771.A.20B
dakkk: 能負擔當然三房 而且有兩衛 那三房裝簧時改成兩房也是可以10/29 02:04
kodar7544: 35號~ 38有可能要倒車兩次10/29 02:19
skypiper: 1610/29 02:21
icexice: 三房格局比兩房好很多耶10/29 02:24
icexice: 不只是多一房,空間感、生活感差很多哦10/29 02:25
Cinedt: 閨蜜上包養網還推薦我...10/29 02:25
jchen0521: 38上下車會很麻煩。10/29 02:26
rick6304: 54-57要倒一整路進去ㄟ好強10/29 03:15
ck13579: 3房改2房當更衣+儲藏室10/29 03:31
a0989876: 3房,你新房會付很多摩擦成本,代書費 裝潢費之類的10/29 03:42
a0989876: 坪數越大越好 可以攤提這些雜費10/29 03:42
Drither: 包養?10/29 03:42
livability: 3房好很多10/29 04:16
teasy: 19號看起來不錯10/29 04:53
iwei0930: 看不太懂你的敘述 所以代銷建議不要選架好充電樁的 選電10/29 07:40
iwei0930: 纜經過的就好?肯定是唬爛的 不管有沒有電纜經過都要到10/29 07:40
iwei0930: 時成立的管委會區權會同意才行10/29 07:40
Notker: 現在包養網都這麼直接嗎10/29 07:40
h760108: 秒選三房但改2+1,不過主衛跟客衛的馬桶圖面不一樣大10/29 07:58
leocat: 3房,千萬不要改半開放式的+1房。好看是好看,實用性差超10/29 10:41
leocat: 多。改+1房,如果有一天你有兩個小孩,或是要在家工作,10/29 10:41
leocat: 你會想打死自己 10/29 10:41
jen1121: 幾個人住? 10/29 10:46
Peycere: 歐美包養真的很平常嗎? 10/29 10:46
smile14for0: 我會選19 比較好停 10/29 12:04
opop1133: 三房格局不錯 但31坪3房… 10/29 12:25
leocat: 會有小孩那就是三房,就算只生一個,你還是會需要三房的 10/29 13:44
sam88264: 車位妙選19 10/29 14:37
duckhuai: 會生小孩絕對直上三房 10/29 14:59
vd422: 男友上包養網 該放生嗎 10/29 14:59
takosom: 3房格局比2房好太多~~停車位的話,19還行 10/29 16:14