靠網友推薦,這次有去都廳二期早鳥,先付定買了A6 10樓看公園風景 (38.39坪: 室內 大約22.42坪,陽台2.53坪),客廳棟距應該有120M,各位覺得這次格局有好很多嗎?一 坪66,總價27xx https://i.imgur.com/Zj7bTN0.jpg
https://i.imgur.com/JIoFkoE.jpg
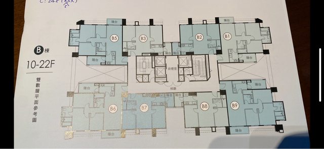
另外也去看了冠得心天匯,B5高樓層看整個觀音山夜景真的舒服。不過下班時間注意到湯 城園區停車場,有車出來,警示音(類似公車聲)嘟嘟嘟嘟… 除了這個真的90以上,有這個噪音剩下60了 然後走路到捷運站五分鐘,但街廊非常亂,然後重新路非常吵~所以走路5分鐘到捷運站 算是一個困難的五分鐘 https://i.imgur.com/2kjEl7I.jpg
一對比冠德格局好,但總機也不低,3房中樓層約2800,終於懂為什麼這多的人選擇困難 ※ 引述《CCChieh (NewLife)》之銘言: : 小魯有兩小,需要三房今天去看都廳大院,可惜38.8已經賣完,剩下小小三房33坪 一 : 約63 但扣掉公設35%只剩下22坪。 : 剩下的42-43坪又太貴,破3000 : 扣掉玄關跟兩個陽台,這樣是否適合4個人居住呢?2小約幼稚園跟小一年紀?我是覺得 : 本太小,這應該是2房吧!但不上車會不會末班車都沒了?? : 捷運一分鐘還是很吸引人 : https://i.imgur.com/S4NwsXg.jpg
-- ※ 發信站: 批踢踢實業坊(pttsite.org.tw), 來自: 123.194.148.44 (臺灣) ※ 文章網址: https://pttsite.org.tw/home-sale/M.1698153567.A.4AF
sss700304: 茂德品質,痛得你心,手槍格局,貽笑國際10/24 21:20
a123454698: 才66喔,上一篇一堆人說二期要賣90真是好笑10/24 21:25
iceonly: 你要找設計師吧,還是要看看有沒有家配圖,不然那個客廳10/24 21:29
iceonly: 感覺很難擺傢俱10/24 21:29
iceonly: 仔細看了一下廚房獨立在下面,那就客餐廳對調就好沒事10/24 21:31
OREOMZA: 身邊有朋友被包養10/24 21:31
Robben: 這格局有夠茂柏10/24 21:31
Robben: 客廳感覺跟餐廳寫反10/24 21:33
aa00788: 手槍美房 值得擁有 10/24 21:47
swgun: 勇者 是我選冠德10/24 21:50
swgun: 自住的話選每戶大小差不多的 住戶大會才比較好開不10/24 21:57
punjab: 亞洲最大包養平台上線了10/24 21:57
swgun: 會意見差很多 10/24 21:57
shuichia: 這個客廳只能當玄關,餐廳當客廳,這樣能算3房2廳?10/24 21:58
tswen: 9戶兩梯。好在哪10/24 22:08
tswen: 你的格局算不錯了10/24 22:08
fancyrex: 這格局?!10/24 22:13
sashare: 這個包養網正妹好多 是真的嗎10/24 22:13
piliwu: 三房怎麼設計成那麼長…10/24 22:14
mimiilove: 有小孩選都廳,到站即到家10/24 22:19
Robben: A6真的算好的 隔壁超級悲劇 10/24 22:30
Robben: 全部都暗聽 間接採光都沒有XD 10/24 22:32
mt312: 恭喜,都廳真的供給量太大,買點不同格局,才能保值 10/24 23:03
sijiex: 真的有這麼多人在找包養 10/24 23:03
louis1704: 室內大約22坪,可能最小的房間只能放單人床和走道就沒 10/24 23:06
louis1704: 了,可以去找仲介看看類似大小的房屋參考看看 10/24 23:06
h760108: 其實你3房角間但只有單面採光,嚴格來說…是真的不怎樣 10/24 23:10
junior020486: 花這麼多錢買手槍房,唉 10/24 23:15
floatfaith: 38.39坪的1.5衛..雙北真的不容易啊~ 推 10/24 23:21
VLADINA: 有人可以分析一下包養平台的差異嗎 10/24 23:21
floatfaith: 啊我眼殘看錯了 是2衛XDDD 10/24 23:22
TWIM: 心天匯B5的話應該還能折個2-3萬 10/24 23:44
blargelp: A6格局是買來租人雅房的吧 10/25 00:13
beforehand: 這格局我不行 10/25 00:19
Harlequin727: 其實三房格局還可以啦 你怎不選D6格局對稱 但無限 10/25 01:21
odemagus: 那個包養網人最多XD 10/25 01:21
Harlequin727: 棟距的 10/25 01:21
oncloudy: 老天…這格局 10/25 05:21
TMTTMT: 公寓/透天的既視感 10/25 06:22
wuu831: 勇者 10/25 07:26
benson502: 這個地點很強吧,如果有地緣性,附近又都看過了,好像 10/25 09:03
yes500: 我妹上包養網被我發現= = 10/25 09:03
benson502: 也只能嫌一下隔局跟總戶數 10/25 09:03
bob1211: 冠德心天匯有社會住宅在裡面,以後房價會受限 10/25 09:37
LA24: 邊間還能做到像是丹面採光 服了茂伯 10/25 10:48
p47603986: 可怕的格局 10/25 12:57
autherlike: 可以 這很手槍 10/25 18:44
alexantiy: 隔壁桌的人竟然在討論包養... 10/25 18:44