作者inging841009 (波羅麵包)
標題[請益] 兩房格局請益
時間2023-10-01 19:57:15
今天去看了南部一建案,地上13層地下兩層,比較特別的是一樓也有平面車位設計,中庭
整塊是露天的。
格局ㄧ:
https://i.imgur.com/GFslSmx.jpg
優點:兩房無走道空間,幾乎沒有風水的問題,樑柱都外移。
缺點:
1.開放式廚房,本身蠻在意的,但是代銷說如果在意可以自己隔。
2.廁所沒開窗、單面採光。
格局二:
https://i.imgur.com/Ycm05gi.jpg
優點:兩套完整衛浴
缺點:開門見窗、開放式廚房、室內吃柱、收納空間不足。
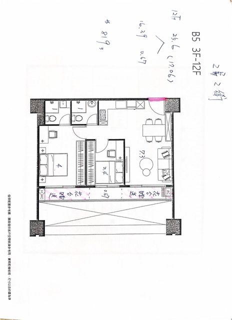
格局三:私心最愛
https://i.imgur.com/7RoZpsB.jpg
優點:非開放式廚房、格局方正、雙面採光、收納多。
缺點:只有一套衛浴。
格局四:
https://i.imgur.com/NSehaci.jpg
優點:現場樣品屋擺放,客廳面寬340公分,整體空間感不錯;衛浴開窗。
缺點:陽台偏小而且在客廳旁邊、開放式廚房。
價錢大概都可負擔(還沒加車位價格),西邊面三層樓透天,南邊面河堤步道、東邊約6米
道路。
請問大家會選擇哪個格局呢,謝謝。
--
※ 發信站: 批踢踢實業坊(pttsite.org.tw), 來自: 61.61.181.34 (臺灣)
※ 文章網址: https://pttsite.org.tw/home-sale/M.1696161437.A.428
推 McKing: 3 10/01 20:06
推 BrandonMai: 絕對3 其他廚房位置都很鳥 10/01 20:31
推 rick6304: 我脖子好酸 10/01 20:33
推 annshu0501: 4 10/01 20:47
推 cphe: 3 10/01 20:59
推 Notker: 亞洲最大包養網上線啦 10/01 20:59 推 henry1326: 3 10/01 21:30
推 leiouter: 1不是開門見廁嗎 10/01 21:35
→ kgkg0057: 私唯一就 是.. 10/01 21:42
推 shi21: 3 10/01 23:55
推 iloveapple: 哪個建案能說嗎 10/02 01:00
推 Peycere: 我哥上包養網被我抓包.. 10/02 01:00 → fickle85: 3 10/02 08:55
推 livability: 3 10/02 10:26