作者charles0939 (charles0939)
標題[新聞] 【獨家】【監測報告曝人禍1】基泰大直監
時間2023-09-11 10:35:05
【獨家】【監測報告曝人禍1】基泰大直監測資料曝光 坍塌前44天儀器已超出警戒值
2023年9月11日 週一 上午9:26
基泰大直建案造成鄰近民宅坍塌,7月26日的監測資料顯示,建案在大規模開挖前,部分
監測點已超過警戒值。
台北市中山區「基泰大直」建案因施工不良造成連續壁斷裂,造成附近民宅坍塌,包括工
程業界及專家都直指是連續壁施作不當,根據基泰建設委託的儀大工程顧問公司,提供北
市都發局7月26日的監測報告顯示,在坍塌前44天的監測報告結論及說明一欄中已明確指
出,「部分監測儀器已超出警戒值」,但基泰未做積極處置,在9月照常大規模開挖,終
於釀成這起重大公安事故。
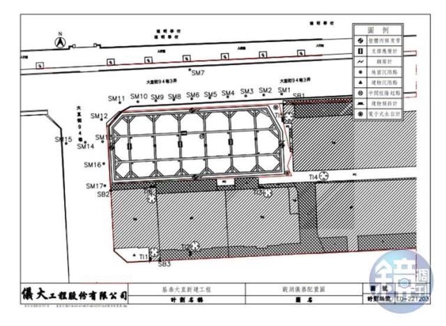
根據負責監測工地現場的儀大工程顧問公司提供給北市都發局的資料,結論直指施工概況
「鋪面破碎」,包括最靠近94巷1-9號坍陷區的觀測點SB-2,儀器顯示包括地面沉陷點、
建物沉陷點都大於行動值(넲0mm),建物傾斜計也大於警戒值(넱/500,412秒)「部分
監測儀器已超出警戒值,本公司將加強後續變化。」
https://i.imgur.com/3pYHXF6.jpg
基泰大直委託儀大公司進行的監測報告,7月26日在結論已明確指出部分監測儀器已超出
警戒值。
台北市議員王世堅指出,從儀大工程的監測報告可以看出,7月26日是在出事前的44天,
當時連續壁已經完工,仍然處於保養期,尚未大規模開挖,但監測報告已明顯點出異狀,
與當地居民檢舉地面及建物出現沉陷、地面隆起的情況不謀而合,業主基泰建設不但未正
視進行地質補強,反而照樣開挖,「真的是不把附近居民的生命財產放在眼裡。」
王世堅8日向基泰建設要求提出「監測資料」,都發局卻表示,「埋在土裡了!」都發局
當時對外回應:「據承造人現場人員陳述,現場之監測資料存放在基地內工務所因坍陷暫
無法立即取得,故建管處已於112年9月8日北市都建施字第1126163216號函請基泰建設股
份有限公司、福益營造股份有限公司、王德生建築師事務所、儀大工程股份有限公司於11
2年9月11日前提供本案之地下室開挖迄今相關監測資料。」
https://i.imgur.com/XYUHbw0.jpg
觀測點SB-2就位在坍塌的94巷1-9號前,大於標準值的監測值,卻被基泰漠視。
基泰建設總經理馮先勉10日在公司記者會時也正式對外回應,「週一市府一定會得到!」
https://ynews.page.link/R1YnK
--
※ 發信站: 批踢踢實業坊(pttsite.org.tw), 來自: 116.89.128.51 (臺灣)
※ 文章網址: https://pttsite.org.tw/home-sale/M.1694399707.A.092
→ abyssa1: 這個比較猛 「埋在土裡了」是什麼神回覆 09/11 10:37
→ IBIZA: 埋在土裡正常啊 現場灌漿 甚麼都埋起來了 開挖就行了 09/11 10:53
→ IBIZA: 埋幾天不會壞 09/11 10:53
→ shyangwang: 台北市政府還在睡 09/11 10:54
推 kusomanfcu: 7/26 09/11 11:20
推 SEDAP: 樓上是不是被包養 09/11 11:20 推 dans: 監測儀器雖然超標,可鄰損申訴的結論是無影響,嗯嗯嗯… 09/11 11:28
→ lspss93009: 埋在土裡是鬼扯 什麼年代了沒留電子檔? 09/11 11:41
推 carolgilbert: 所以是台北市政府瀆職啊 09/11 12:45
推 deepdish: 所以這次誰要背鍋阿 09/11 13:36
推 NSYSUEE: 基泰就是覺得就算到臨界值開挖也不會有事,用以往的做事 09/11 18:07
推 TUZom: 未看先猜這包養網 09/11 18:07 → NSYSUEE: 態度做事,夜路走多了就會碰到鬼,活該死好 09/11 18:07